物件詳細 戸建 八戸市
details戸建 CITY SIDE吹上三丁目1号室
情報更新日:2026-02-19
解放感のある戸建物件・水廻り(浴室・洗面)リフォーム工事済み!
- 所在地
- 青森県 八戸市 吹上3丁目1-15
- 種別/間取り
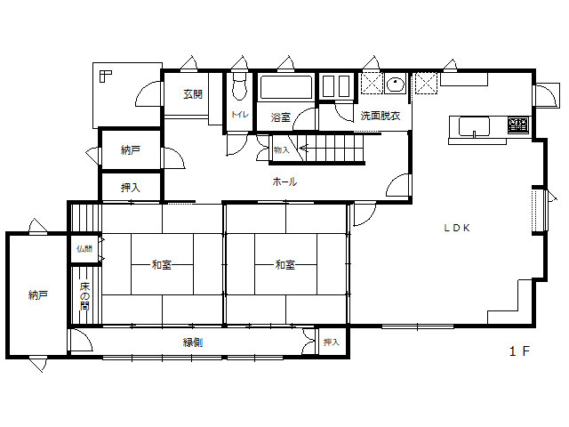
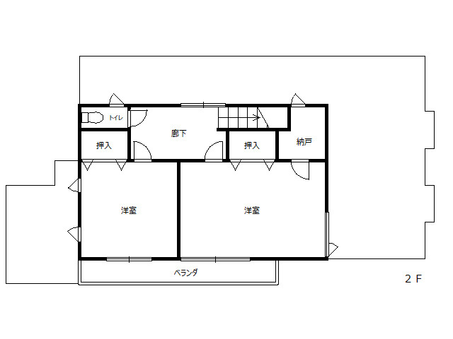
- 戸建/4SLDK
- 月額賃料
- 120,000円/月
- 専有面積
- 167.73㎡
- バルコニー面積
- ─
- 共益費
- ─
- 管理費
- ─
- 敷金
- 2ヶ月 240,000円
- 礼金
- ─
本物件の内容や画像等は全て現況優先となります。
各画像は参考図となります。
| 交通機関 | バス 八戸市営バス鍛冶町通り 徒歩6分 | ||
|---|---|---|---|
| 学区 | 吹上小学校(0.55km)・第一中学校(0.85km) | ||
| 詳細間取 | 4SLDK (2階:洋12帖×1、2階:洋8帖×1、1階:和8帖×2、LDK22.75帖、サービスルーム2.16帖) | ||
| 周辺施設 | 八戸市役所:1300m、八戸吹揚郵便局:300m、セブンイレブン八戸鳥屋部町店:650m | ||
| 駐車場 | 敷地内 無料 | 建物構造 | 木造 地上2階建 |
| 駐車場複数台 | 可1台まで | 主要採光方向 | 南 |
| 仲介料 | 132,000円 (1ヶ月相当) | 周辺環境 | |
| 保険又は共済 | 要加入 | 入居可能日 | 即入居可 |
| 保証金 | 築年月 | 平成7年8月 | |
| 権利金 | 取引態様 | 仲介 | |
| 保証会社 | 利用必須 オリコフォレントインシュア 初回保証料60,000円 | ||
| その他費用 | 決済サービス料(毎月):1,560円 | ||
| トイレ | 洋式 独立 水洗 暖房便座 洗浄機能付 | 風呂 | 有 シャワー有 追焚機能付 給湯式 |
| 設備 | 上水道設備(公営) 下水道設備 給湯(石油)3箇所 洗面化粧台(独立)(シャワー付) 都市ガス ガスコンロ(3口) TV付インターホン FFストーブ バルコニー 下駄箱 洗濯機置場 物置 網戸 カーテンレール 照明器具 TVアンテナ カーポート フローリング クローゼット エアコン(5台)複層ガラス ホームタンク | ||
| 備考 | 保険加入2年間 保険料(参考) 18,000円 普通賃貸借 ※同業他社による客付け可(手数料割合:自社50%/他社50%) | ||
| 取扱業者 |
東和ハウジング(株) 青森県知事(14)第1132号 青森県八戸市城下4丁目14番19号 TEL:0178-43-5536 FAX:0178-22-5543 (公社)青森県宅地建物取引業協会会員 東北地区不動産公正取引協議会加盟事業者 |
||















